File
Zeichnung_TZ_1202823_CT_S_Lift_125_non-ventilated_D400.pdf
PDF 483 KB
Technische Zeichnung ACO Schachtabdeckung Citytop mit Gusseisen-Deckel und BEGU-Rahmen, Belastungsklasse D 400, ohne Lüftungsöffnung
File
Zeichnung_TZ_CityTop_FIX_RH_100_m.V._Art-Nr.1203050.pdf
PDF 812 KB
Technische Zeichnung ACO Schachtabdeckung Citytop mit Gusseisen-Deckel und Flansch, Belastungsklasse D 400, mit Lüftungsöffnung
File
Zeichnung_TZ_MultiTop_D400_RA_BEGU_quadratisch_LW605.pdf.pdf
PDF 188 KB
Technische Zeichnung quadratische ACO Schachtabdeckung Citytop mit Gusseisen-Deckel und BEGU-Rahmen, mit Lüftungsöffnung
File
Zeichnung_1203996_PL2016.pdf
PDF 2 MB
Technische Zeichnung ACO Schachtabdeckung Bituplan CityTop P 170, Artikel-Nr. 1203996
File
Zeichnung_1203998.pdf
PDF 2 MB
Technische Zeichnung ACO Schachtabdeckung Bituplan CityTop P 140, Artikel-Nr. 1203998
File
ACO-Access-Covers-Einbau-und-Wartungsanleitung.pdf
PDF 2 MB
Einbau- und Wartungsanleitung für die ACO Access Covers
File
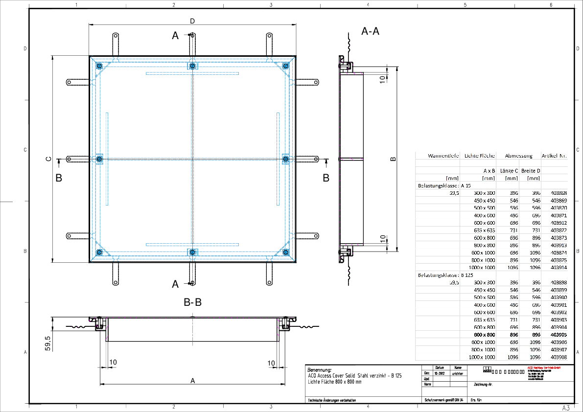
Zeichnung_Access_Cover_Solid_B125_800x800_S.pdf
PDF 872 KB
Technische Zeichnung ACO Access Cover Solid Stahl verzinkt 800 x 800 mm
File
Ausschreibungstext-SAKU-ACO-Tiefbau.docx
DOCX 244 KB
Ausschreibungstext für die ACO Schachtabdeckung SAKU mit Kunststoff-Deckel und BEKU-Rahmen
File
Zeichnung-SAKU-LW605-rund-B125-ACO-Tiefbau.pdf
PDF 187 KB
Technische Zeichnung ACO Schachtabdeckung SAKU mit Deckel aus Kunststoff, Belastungsklasse B 125, PDF File








