File
Technische-Zeichnung-ACO-Schlitzaufsatz-100-seitlich-1000mm-445598-445600.DWG
DWG 364 KB
Technische Zeichnung zur ACO Slotline 100 1000 mm Schlitzrinne mit seitlichem Schlitz
File
Technische-Zeichnung-ACO-Schlitzaufsatz-100-seitlich-1000mm-445598-445600.PDF
PDF 119 KB
Technische Zeichnung zur ACO Slotline 100 1000 mm Schlitzrinne mit seitlichem Schlitz
File
Einbauanleitung-ACO-Schlitzaufsatz.pdf
PDF 2 MB
Einbauanleitung für die ACO Slotline Schlitzrinne
File
Technische-Zeichnung-ACO-Fassadenentwaesserungssystem-E100K.pdf
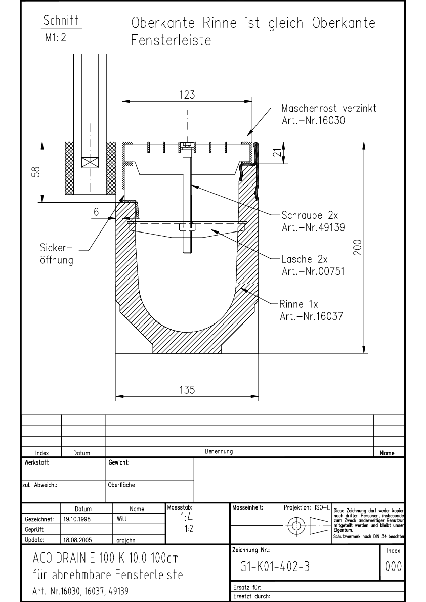
PDF 55 KB
Technische Zeichnung ACO Fassadenentwässerungssystem E 100 K aus Polymerbeton
File
Technische-Zeichnung-ACO-Fassadenentwaesserungssystem-E100K.dwg
DWG 219 KB
Technische Zeichnung ACO Fassadenentwässerungssystem E 100 K aus Polymerbeton
File
Ausschreibungstext-ACO-XtraDrain-X100C.docx
DOCX 43 KB
Ausschreibungstext zur ACO XtraDrain X 100 Entwässerungsrinne aus Kunststoff
File
Ausschreibungstext-ACO-XtraDrain-X150C.docx
DOCX 36 KB
Ausschreibungstext zur ACO XtraDrain X 150 Entwässerungsrinne aus Kunststoff
File
Ausschreibungstext-ACO-XtraDrain-X200C.docx
DOCX 34 KB
Ausschreibungstext zur ACO XtraDrain X 200 Entwässerungsrinne aus Kunststoff
File
Technische-Zeichnung-ACO-XtraDrain-X100-200C-Stirnansicht-11018.dwg
DWG 89 KB
Technische Zeichnung ACO XtraDrain X 100 - X 200 C Stirnansicht
File
Technische-Zeichnung-ACO-XtraDrain-X100-200C-Stirnansicht-11018.pdf
PDF 30 KB
Technische Zeichnung ACO XtraDrain X 100 - X 200 C Stirnansicht



